
Bytový dům Kandertova
architektonická studie
rok: 2018
rozsah: hpp 4800 m2
investor: relimex group s.r.o.
autor: jan mackovič
spolupráce: ivona náterová, cyril pederencino
stavební část: jakub killnar
snímky: archiv autorů
Hmotová studie se zabývá přestavbou původního 5podlažního domu sloužícího jako kancelářská budova a jeho dostavbou křídlem domu do výsledného tvaru „L“ v rámci započatého městského bloku. Celková hmota bude sloužit jako bytový dům.
Stavební pozemek (vedený v územním plánu jako všeobecně obytná funkce) se nachází v městské části Praha 8 – Libeň na okraji kompaktní blokové zástavby, katastrální území Libeň. Parcela tvoří jihozápadní rohové ukončení započatého bloku, ze severní strany k ní přiléhá park Pod Korábem a z jižní strany sousedí s železniční tratí vedoucí z hlavního nádraží do Holešovic. Okolí poskytuje základní vybavenost: střední školu, vysokou školu, restaurace, dětské hřiště. Metro Palmovka je vzdáleno pouhých 800 m a v bezprostřední blízkosti je v budoucím metropolitním plánu navržena také nová zastávka vlaku. Vyšší patra stávajícího domu nabízejí kromě jižní orientace také dálkové výhledy směrem na Žižkov, nově přistavené křídlo pak východní pohledy až na Hradčany.
Nosná konstrukce původního objektu bude z ekonomických důvodů ponechána. Budou odstraněny fasádní panely, výplně otvorů atp. Do výsledného tvaru „L“ je navrženo nové západní křídlo stejného objemu. Z důvodu tvaru nosné konstrukce původního domu a přání investora stavět především malometrážní byty byla zvolena dvojtraktová dispozice s vnější pavlačí ve vnitrobloku. Přízemí domu bude využito pro parkování, vjezdovou rampu do suterénu, technické místnosti a několik komerčních jednotek. Vyšší podlaží budou využita pro malometrážní byty se společnými pavlačemi a jedním centrálně umístěným vertikálním jádrem. Ve dvou nejvyšších podlažích se plánují větší mezonetové byty.
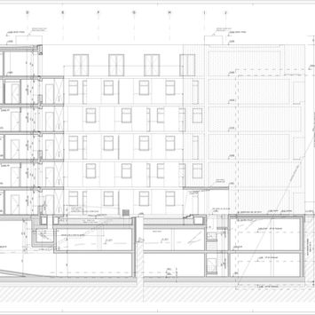
Základní hmota původního domu činí 5 podlaží včetně přízemí. Hmota nového západního křídla je identická, pouze je o podlaží vysunuta nahoru kvůli stoupajícímu okolnímu terénu (na přízemí budou otevřené částečně zapuštěné garáže). Obě tyto základní hmoty navyšujeme o ustupující podlaží s dvoupodlažními byty větších metráží s terasami (v případě původní hmoty se jedná o dvě ustupující podlaží). Na nároží vzniká jednopodlažní výškový akcent, kde se zhodnocuje exkluzivní poloha pro velkometrážní byt s výbornými výhledy. V této nárožní hmotě se uvažuje vnitřní přiznaná terasa, která navržený objem odlehčí. Stejný nárožní akcent můžeme pozorovat i u nárožních domů v sousedních blocích stejně jako i jinde v Praze. Menší byty v nižších patrech využívají velkorysé „socializační“ pavlače, kde počítáme s umístěním skladů bytů a doplňkové využití v podobě venkovního krytého posezení. Vzhledem k předpokládanému hluku z přilehlé železnice plánujeme zejména byty v uličním traktu opatřit pasivními průvětrníky (bude ověřeno v akustické studii). Naopak terasy v nejvyšších patrech zhodnocují výhledy a hluk je odcloněn pomocí ustoupení – viz schematický řez ve výkresové části. Výška hlavní římsy navrženého objektu odpovídá běžným výškám v okolí. Ustoupená podlaží jsou navržena tak, aby zejména z pohledu chodce byla skryta.
Fasáda domu je pojednána ve světle šedých tónech, zejména v bílém odstínu. Jedná se o bílou omítku, bíle lakovanou ocelovou nosnou konstrukci pavlače a balkonu a bílé cetrisové desky skladů na pavlači. Pouze hlavní jižní uliční fasáda (jak je to v Praze běžné) je opatřena dekorativními cihelnými pásky tmavé červenohnědé barvy podobně jako dekory na dvou sousedících domech. V parteru domu bude použit pohledový beton. Okenní rámy budou světle šedé u bílých fasád a hnědé u cihlové fasády. Dvorní část bude využita jako společná zahrada. Nad šikmou střechou nad vjezdovou rampou do podzemí bude umístěn jednopodlažní objekt kočárkárny, kotelny a technického zázemí domu.


























